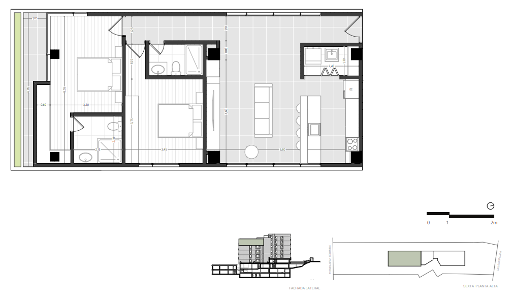
Sala, Comedor, Cocina cerrada, Balcón / terraza, Área de lavandería, Bodega
Caracteristicas
Aislamiento acústico y térmico, Tres niveles de parqueo, Instalaciones de seguridad contraincendios, Gas y agua caliente centralizado, Estructura sismorresistente, Sistemas de seguridad, Ascensor de última generación, Generador eléctrico