Inmo4Rios – Inmobiliaria en Cuenca

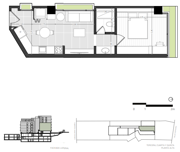
Suite 503

Área Interior

Área Exterior

Numero de Parqueaderos

Detalles

Dormitorios

Baños

Área de Bodega

Caracteristicas

Servicios

Imágenes